MACHINERIE

MACHINERIE
In het Werkspoorkwartier in Utrecht, vlak bij station Zuilen, ontwierp MONK Architecten de Machinerie: een duurzame creatieve hotspot voor film- en beeldcultuur. Het gebouw is gevestigd in een voormalige apparatenfabriek in het industriële gebied waar wij eerder meerdere projecten realiseerden. De Machinerie voegt zich in deze context van hergebruik en transformatie, en versterkt het Werkspoorkwartier als plek voor makers en publiek. Nooit eerder speelde beeld zo’n grote rol in ons dagelijks leven. Om beeldmakers en publiek samen te brengen, bundelden de Utrechtse initiatieven FOTODOK, Hoogt in Transitie (HIT) en het Nederlands Film Festival (NFF) hun krachten. Hun initiatief resulteerde in een plek waar gewerkt, geëxposeerd, vertoond en geleerd wordt. De nieuwe creatieve hotspot die Utrecht nu nog mist. Makers en publiek werken hier met beeld, wisselen kennis uit over beeld en kijken naar beeld.
Locatie
Utrecht
Status
vergunning
Programma
Filmzalen, expositieruimte, horeca, ateliers, flexwerkplekken
Opdrachtgever
Nederlands Film Festival, FOTODOK, Hoogt in Transitie
Oppervlakte
2576 m2


Het programma omvat diverse filmzalen, expositieruimtes, ateliers, flexwerkplekken en horeca. Daarnaast huisvest de Machinerie onder andere kunstcollectief Monobanda, HKU, De Maakruimte, animatiestudio’s Skelter, Frame Order en Job, Joris & Marieke, Stichting Creative Coding Utrecht en INDYVIDEO. Ook partners kunnen ruimtes huren in het gebouw. Het programma van de Machinerie verbindt beeldmakers en bezoekers met elkaar. Educatieve activiteiten en talentbegeleiding geven hen de kans om zich te ontplooien en hun talenten te ontwikkelen, om zo de beeldcultuur te versterken.


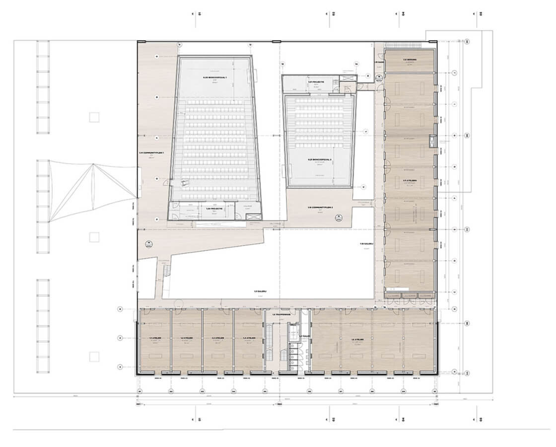
Begane grond
We transformeerde het bestaande pand tot een open, flexibel en duurzaam gebouw dat ontmoeting en kruisbestuiving stimuleert. Door zorgvuldig hergebruik van de bestaande structuur, het toepassen van het box in box principe en het helder organiseren van publieke en besloten functies ontstond een toekomstbestendige plek voor beeldcultuur. Het industriële karakter van het pand bleef zichtbaar, terwijl het interieur werd aangepast aan de technische en akoestische eisen van film- en expositieruimtes.


Het programma rust op vier pijlers. ‘De maatschappij, dat zijn wij’ toont visuele verhalen die nieuwe perspectieven bieden op actuele thema’s. Met ‘Leren door te doen’ worden workshops aangeboden voor een breed publiek, van kinderen tot professionals. ‘De Machinerie bouwen we samen’ stimuleert uitwisseling tussen makers en publiek via lezingen, workshops en Q&A’s. ‘Innovatie en kruisbestuiving’ ondersteunt talentontwikkeling door samenwerking tussen disciplines en (inter)nationale beeldexperts. Zo profiteren Utrechters van deze nieuwe creatieve hotspot én zetten we Utrecht nationaal en internationaal op de kaart.

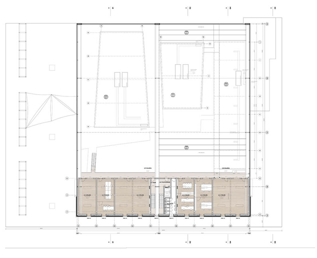
Eerste verdieping

Tweede verdieping


